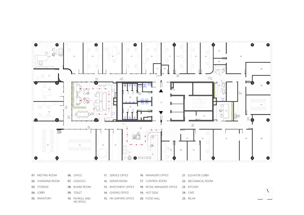
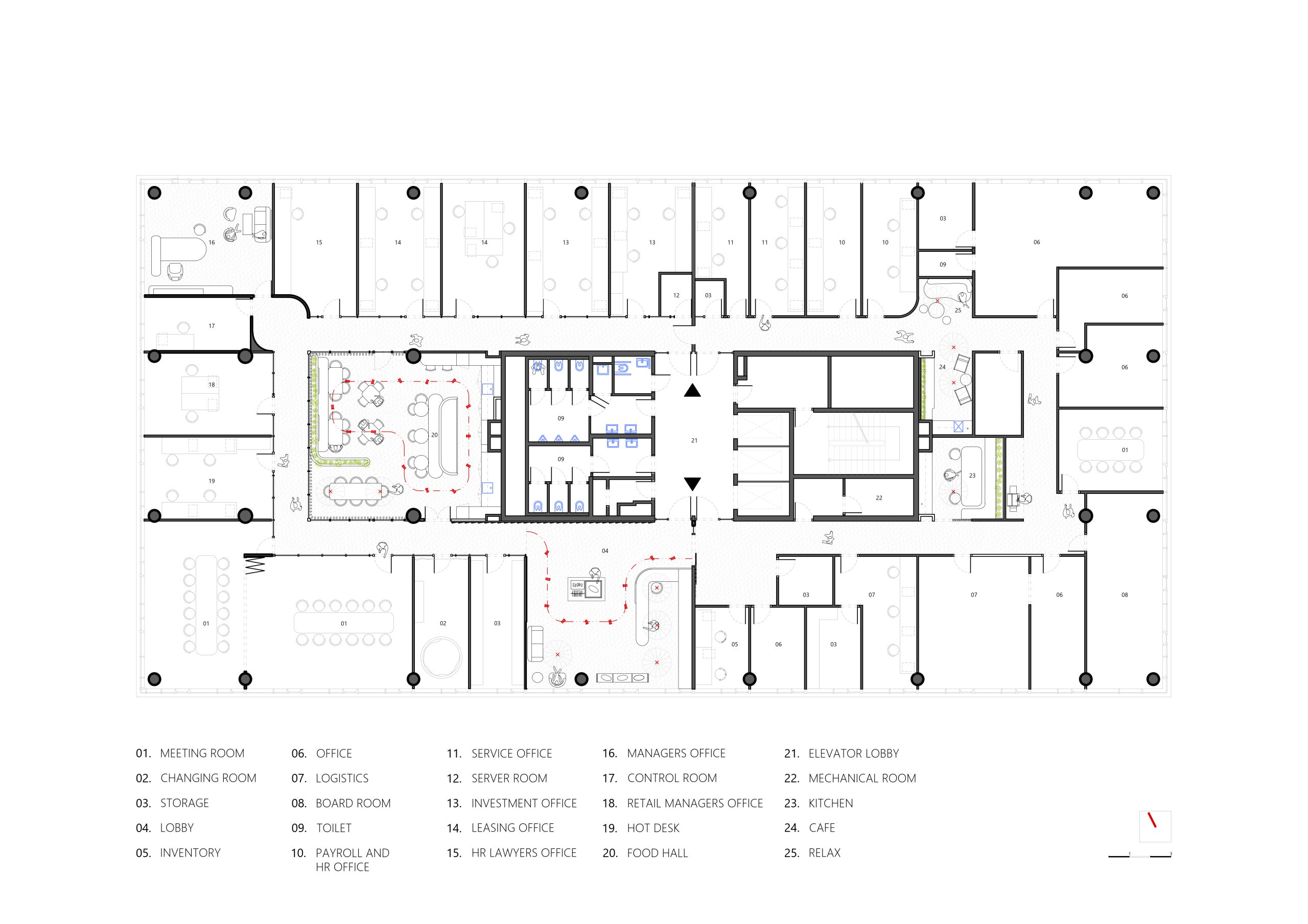
Project: LPP Czechia Headquarters

Year: 2024

Use: Office

Description: Expansion of LPP headquarters and space

adaptation.